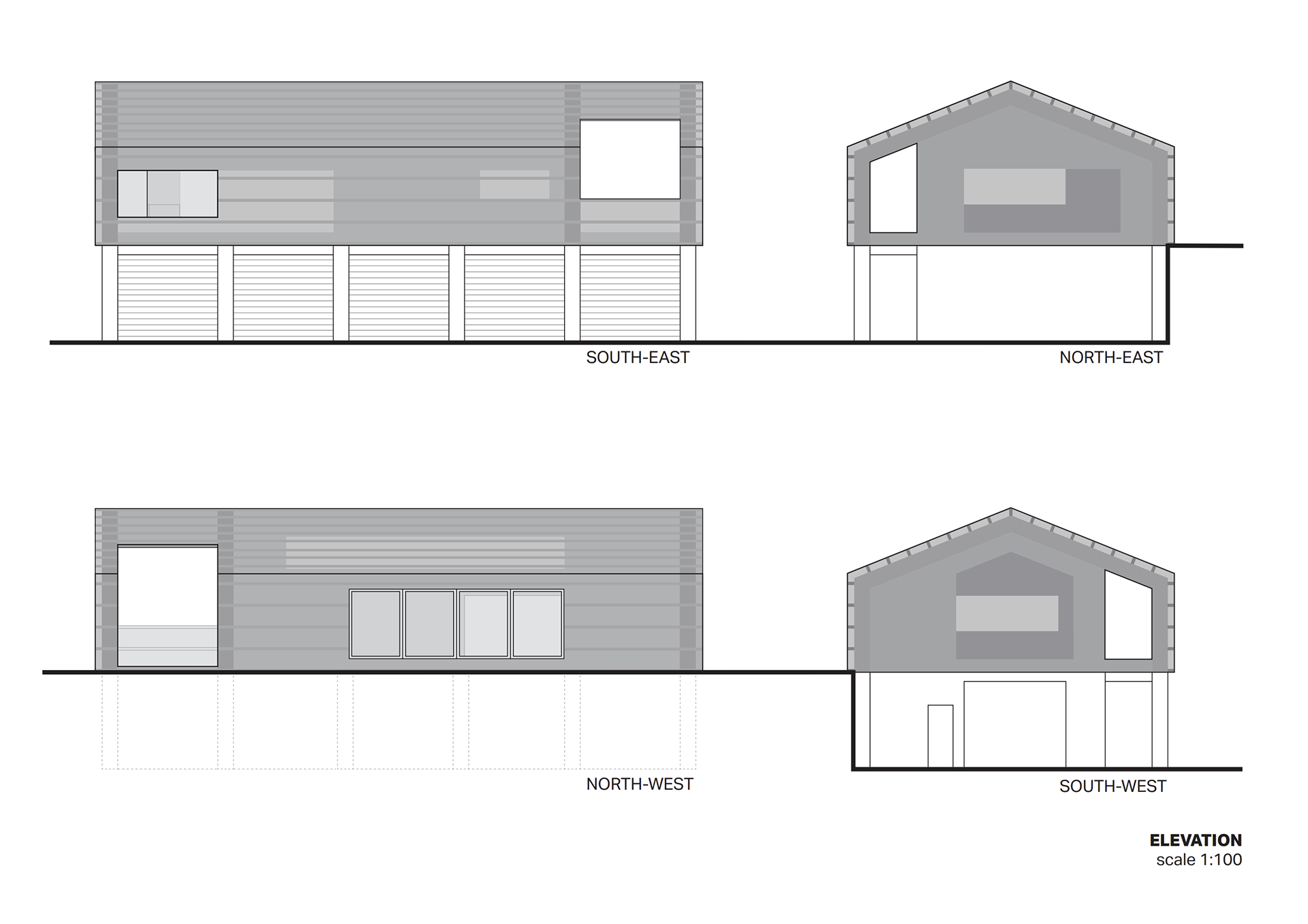
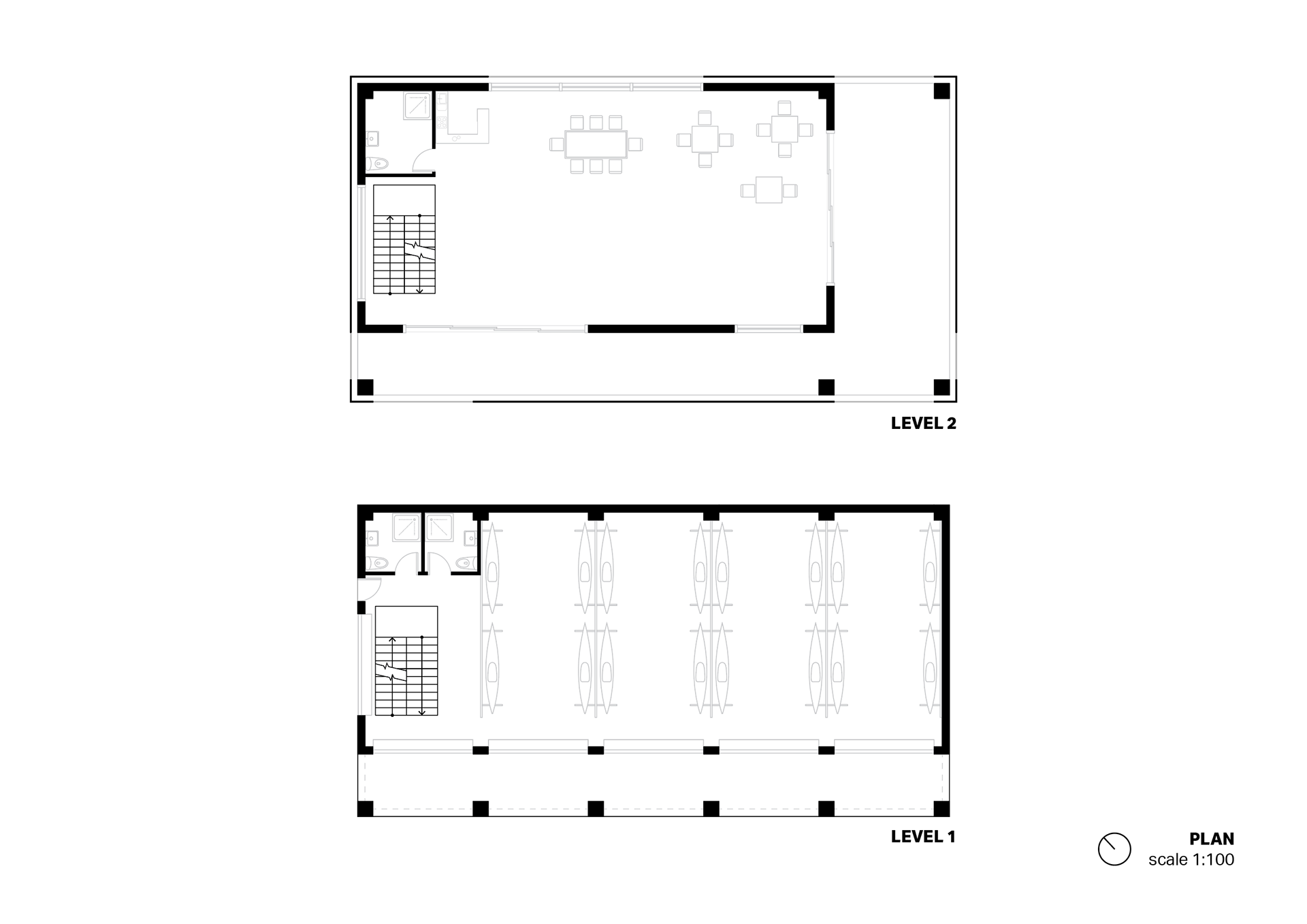
CANOE CLUB
[SELF DIRECTED]
↑
Back to Top